På vackra Särö söder om Göteborg utvecklar Bo Aktivt just nu det nya bostadsområdet Skörvalla Äng tillsammans med Okidoki. Med inspiration från klassiskt lantlig arkitektur, med volymer och material som anspelar på gårdsmiljöer och Särös äldre villabebyggelse, bildar de blivande flerbostadshusen ett sammanhållande tillägg till områdets varierande arkitektur.
– Utöver arkitekturen och utemiljön har vi i detta projekt lagt stort fokus på gemenskap och aktiviteter, med allt från kombinerad matlagningsstudio och festlokal och gemensamt växthus till boulebana och gym, berättar Fredrik Hansson på Okidoki.
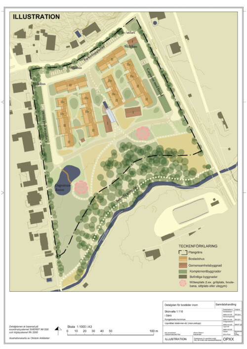
Skörvalla Äng ligger i direkt anslutning till Säröbanan, promenad- och cykelstråket som knyter samman hela kuststräckans vackra naturlandskap. Längs områdets södra del rinner Skörvallaån, som i sydväst ansluter till havet. Det saknas boendekoncept med vackra bostäder för en äldre målgrupp som vill flytta från villan och samtidigt bo kvar i sitt närområde. I och med att den äldre målgruppen lever på ett helt annat sätt än deras föräldrageneration måste vi tänka om och nytt kring hur vi utformar deras framtida boenden.
I Skörvalla Äng är kontakten med landskapet central, där genomtänkta utemiljöer lyfter fram årstidernas växlingar och bidrar till en trivsam boendemiljö. Den gemensamma gården bäddas in i grönska och vilda perennrabatter bryts samtidigt av med låga murar och objekt som skär genom landskapet. Gångar, vattenspeglar och skulpturer adderar rörelse och liv till det gröna rummet. En stor damm fungerar både som uppsamling av dagvatten och som resurs för människor, djur och växter. Det öppna ängslika parklandskapet i söder, inramat av skogsdungen, erbjuder ytterligare platser för både aktivitet och vila, där de boende och deras grannar kan mötas i naturnära miljö.
– Den här typen av projekt har långa ledtider, och vi kliver oftast in i ett tidigt skede för att vara med och ta fram konceptet, gestaltning och driva planarbetet. Genom att etablera en vision och riktning tillsammans med fastighetsutvecklaren och i detta fall kommunen redan på skissbordet ökar kvaliteten i resten av processen, förklarar Helena Rengemo, planeringsarkitekt på Okidoki.
Den planerade bebyggelsen består främst av tvåvåningshus med sadeltak, där vissa centrala byggnader får förhöjt väggliv och inredd vind med takkupor för variation och liv. Träfasader och takpannor anknyter till den lantliga miljön, medan komplementbyggnader som carports och miljöhus får vegetationsklädda tak för att smälta i naturen runtomkring. Pelargångar ger skydd och skapar även en sammanhållen känsla mellan bostäderna och de gemensamma ytorna. Varje bostad har varsin privat balkong eller uteplats för avskildhet, medan framsidans entrébalkonger har en mer social karaktär.
